Constructeur de Maisons

Alpha Constructions

Votre terrain + maison

Retour à la liste

Varetz

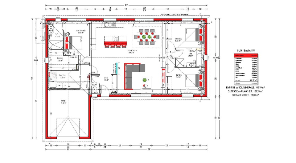
Terrain de 1000 m2 Maison de 90 m2

220 000 €

Notre conseiller à votre écoute

Marie MUNOZ

au 05 55 23 02 47

Terrain proposé par un partenaire foncier selon disponibilité dans le cadre d’un projet de construction avec Alpha Constructions. Les descriptions, photographies, surfaces et prix illustrant l’annonce sont fournies à titre indicatif et ne sont pas contractuels. Non soumis au DPE. Différents modèles disponibles.

Votre maison familiale sur-mesure à Varetz – 90 m² – Projet dès 220 000 €

Offrez à votre famille l’espace et le confort qu’elle mérite… sans compromis ni travaux.
Nous vous présentons un exemple de projet de construction réalisable à Varetz : une maison neuve de 90 m² avec 3 chambres, idéale pour accueillir votre vie de famille dans un cadre moderne et évolutif.

✨ Un projet pensé pour les familles
Grande pièce de vie lumineuse, espace nuit optimisé, rangements, jardin… Chaque m² est conçu pour votre quotidien : enfants, télétravail, moments partagés.
Et surtout — ce modèle peut-être 100 % personnalisable :
• 3 chambres
• 90m2
• Beau salon séjour lumineux

Contrairement à l’ancien, vous ne vous adaptez pas à la maison… c’est elle qui s’adapte à votre famille.

Les avantages du neuf :
• Aucuns travaux à prévoir
• Normes RE2020 – économies d’énergie
• Confort thermique été comme hiver
• Frais de notaire réduits
• Matériaux durables et sécurisants

Budget indicatif pour ce projet : 220 000 €.

Construisez un foyer à votre image, pour aujourd’hui et pour demain.

Étude familiale gratuite et sans engagement, contactez Marie MUNOZ au 06 71 63 16 59, agence de Brive la Gaillarde

Alpha Constructions

Votre agence

BRIVE

10 Rue Armand Sourie
19100 Brive

Tél. : 05 55 23 02 47

contacter l'agence

Et si vous faisiez construire
à Varetz

Votre maison

Découvrez nos modèles de maison adaptés à votre style et votre secteur...

Modèles de maison Alpha constructions

Alpha Constructions s'engage

Bénéficiez d’un savoir-faire, d’une expérience et de garanties.

Expérience Alpha Constructions

Expérience

+ de 20 ans
de savoir-faire
3800 maisons
réalisées

Garanties Alpha Constructions

Garanties

Parfait achèvement, décennale...
des garanties à chaque étape
de votre projet

Alpha Constructions à vos côtés

À vos côtés

à chaque étape, nous vous
accompagnons vers la
réussite de votre projet

Parce que votre avis compte !

Alpha Constructions

ÉlodieR

Parfait !

Demande toujours respectée et comprise toujours disponible et a l'écoute du client.

4,8 / 5

1356 avis

+