Constructeur de Maisons

Alpha Constructions

Votre terrain + maison

Retour à la liste

Saint-Sulpice-et-Cameyrac

Terrain de 800 m2 Maison de 100 m2

299 000 €

Notre conseiller à votre écoute

Christophe VINCENT

au 05 56 06 31 92

Terrain proposé par un partenaire foncier selon disponibilité dans le cadre d’un projet de construction avec Alpha Constructions. Les descriptions, photographies, surfaces et prix illustrant l’annonce sont fournies à titre indicatif et ne sont pas contractuels. Non soumis au DPE. Différents modèles disponibles.

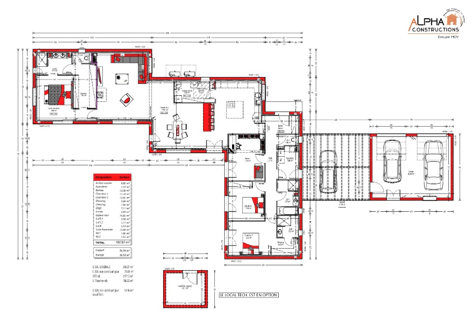
SAINT LOUBES, maison de plain pied 100 m².
Alpha Constructions vous propose de réaliser une maison de 100 m² à Saint Loubès. Composée de 3 chambres avec placard, d’une salle de bain avec meuble vasque et douche à l’italienne, et d’un WC indépendant. La pièce de vie spacieuse et confortable dispose d’un salon séjour, d’une cuisine ainsi que d’un cellier. Chauffage performant et économique, cette maison répond aux normes RE 2020.
Contactez dès à présent Mr VINCENT au O6.71.17.33.22 pour de plus amples informations.
(Prix incluant terrain, frais de notaire, viabilisation et maison prête à décorer)

Alpha Constructions

Votre agence

BEYCHAC-ET-CAILLAU (Siège)

15 Route de Canteloup
33750 – BEYCHAC-ET-CAILLAU

Tél. : 05 56 06 31 92

contacter l'agence

Et si vous faisiez construire
à Saint-Sulpice-et-Cameyrac

Votre maison

Découvrez nos modèles de maison adaptés à votre style et votre secteur...

Modèles de maison Alpha constructions

Alpha Constructions s'engage

Bénéficiez d’un savoir-faire, d’une expérience et de garanties.

Expérience Alpha Constructions

Expérience

+ de 20 ans
de savoir-faire
3800 maisons
réalisées

Garanties Alpha Constructions

Garanties

Parfait achèvement, décennale...
des garanties à chaque étape
de votre projet

Alpha Constructions à vos côtés

À vos côtés

à chaque étape, nous vous
accompagnons vers la
réussite de votre projet

Parce que votre avis compte !

Alpha Constructions

ÉlodieR

Parfait !

Demande toujours respectée et comprise toujours disponible et a l'écoute du client.

4,8 / 5

1333 avis

+