Constructeur de Maisons

Alpha Constructions

Votre terrain + maison

Retour à la liste

Saint-Mexant

Terrain de 2900 m2 Maison de 110 m2

349 000 €

Notre conseiller à votre écoute

Thibault JUILLARD CONDAT

au 05 55 23 02 47

Terrain proposé par un partenaire foncier selon disponibilité dans le cadre d’un projet de construction avec Alpha Constructions. Les descriptions, photographies, surfaces et prix illustrant l’annonce sont fournies à titre indicatif et ne sont pas contractuels. Non soumis au DPE. Différents modèles disponibles.

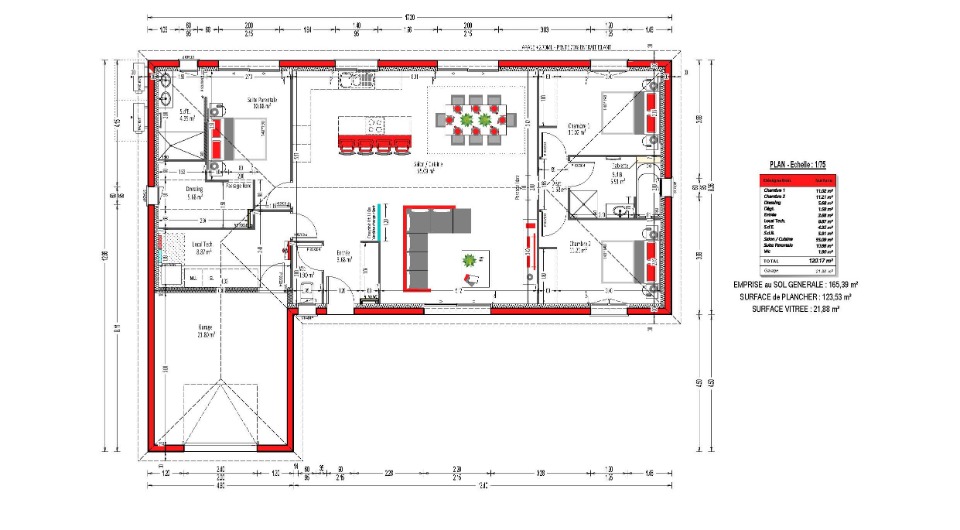
Maison neuve sur sous-sol de 110 m² – 3 chambres – Projet clé en main à Saint-Mexant – 349 000 €
Et si vous arrêtiez d’acheter un bien qui ne vous ressemble pas… pour créer celui qui vous correspond vraiment ?
Nous vous présentons ici un exemple de projet de construction en sous-sol réalisable à Saint-Mexant : une maison neuve de 110 m² avec 3 chambres, une terrasse couverte, un double garage avec atelier en sous-sol, pensée pour allier confort moderne, performance énergétique et valorisation patrimoniale.

Un projet 100 % sur-mesure. Ce modèle est une base d’inspiration.
Chez nous, chaque client choisit :
• L’emplacement de son projet
• La surface et l’agencement
• Le nombre de chambres
• Les prestations et équipements

Vous imaginez votre maison… nous la construisons.
Contrairement à l’ancien, aucun compromis : pas de travaux, pas de pièces mal agencées, pas de rénovations imprévues. Tout est pensé selon votre mode de vie.

Les avantages du neuf :
• Normes RE2020 – fortes économies d’énergie
• Frais de notaire réduits
• Confort thermique et acoustique optimal
• Matériaux modernes et durables
• Domotique et équipements actuels possibles

Budget estimatif pour ce projet : 349 000 €

Choisissez où vivre, choisissez comment vivre… et construisons-le ensemble

Alpha Constructions

Votre agence

BRIVE

10 Rue Armand Sourie
19100 Brive

Tél. : 05 55 23 02 47

contacter l'agence

Et si vous faisiez construire
à Saint-Mexant

Votre maison

Découvrez nos modèles de maison adaptés à votre style et votre secteur...

Modèles de maison Alpha constructions

Alpha Constructions s'engage

Bénéficiez d’un savoir-faire, d’une expérience et de garanties.

Expérience Alpha Constructions

Expérience

+ de 20 ans
de savoir-faire
3800 maisons
réalisées

Garanties Alpha Constructions

Garanties

Parfait achèvement, décennale...
des garanties à chaque étape
de votre projet

Alpha Constructions à vos côtés

À vos côtés

à chaque étape, nous vous
accompagnons vers la
réussite de votre projet

Parce que votre avis compte !

Alpha Constructions

ÉlodieR

Parfait !

Demande toujours respectée et comprise toujours disponible et a l'écoute du client.

4,8 / 5

1344 avis

+