Constructeur de Maisons

Alpha Constructions

Votre terrain + maison

Retour à la liste

Saint-Médard-en-Jalles

Terrain de 480 m2 Maison de 110 m2

395 000 €

Notre conseiller à votre écoute

Jean-Georges DELRIEU

au 06.33.17.65.61

Terrain proposé par un partenaire foncier selon disponibilité dans le cadre d’un projet de construction avec Alpha Constructions. Les descriptions, photographies, surfaces et prix illustrant l’annonce sont fournies à titre indicatif et ne sont pas contractuels. Non soumis au DPE. Différents modèles disponibles.

🏡 Terrain à bâtir + projet de maison – Saint-médard en jalles

Emplacement recherché – Calme, confort et proximité des commodités

Découvrez ce superbe terrain à bâtir idéalement situé a Hastignan .De forme rectangulaire et bénéficiant d’une excellente exposition, il offre un cadre de vie paisible, tout en restant à proximité immédiate des commerces, écoles et services, accessibles à pied.

👉 Les atouts du terrain :

• Environnement calme

• Terrain plat, rectangulaire et très bien exposé

• Belle emprise au sol, permettant la construction d’une maison de plain-pied ou à étage (R+1)

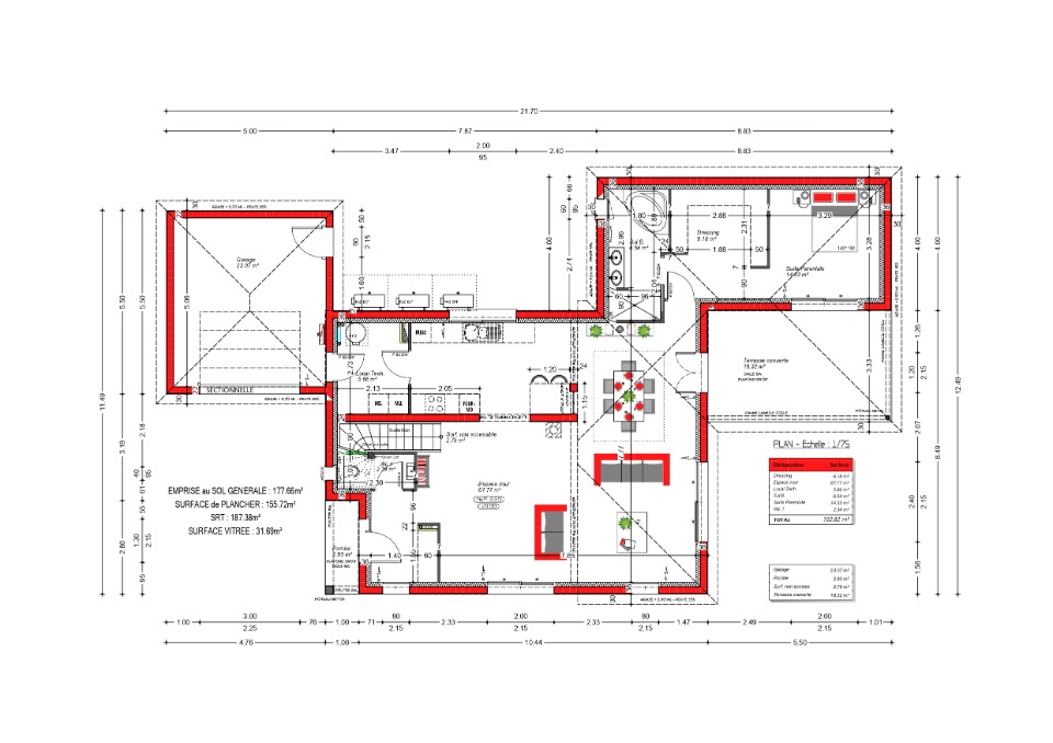
🏠 Exemple de projet proposé :Maison contemporaine de plain-pied de 90 m², comprenant :

• 3 chambres spacieuses dont une suite parentale en rdc

• 2 salles de bains

• Cuisine ouverte, cellier et salle de bains moderne,

• Garage et aménagements personnalisables selon vos envies.

Cette maison, à la fois fonctionnelle et confortable, s’intègre parfaitement à l’environnement du terrain et répond aux dernières normes énergétiques en vigueur.

💡 Notre équipe vous accompagne dans toutes les étapes de votre projet — de la conception à la remise des clés — pour construire votre maison sur mesure à saint-médard.

📞 Contactez Jean Delrieu pour toute information sur ce terrain, Alpha Constructions Castelnau-de-Médoc est là pour vous accompagner dans toutes vos démarches.

Alpha Constructions

Votre agence

CASTELNAU DE MEDOC

9 Avenue Gambetta
33480 CASTELNAU de MEDOC

Tél. : 05 56 74 84 07

contacter l'agence

Et si vous faisiez construire
à Saint-Médard-en-Jalles

Votre maison

Découvrez nos modèles de maison adaptés à votre style et votre secteur...

Modèles de maison Alpha constructions

Alpha Constructions s'engage

Bénéficiez d’un savoir-faire, d’une expérience et de garanties.

Expérience Alpha Constructions

Expérience

+ de 20 ans
de savoir-faire
3800 maisons
réalisées

Garanties Alpha Constructions

Garanties

Parfait achèvement, décennale...
des garanties à chaque étape
de votre projet

Alpha Constructions à vos côtés

À vos côtés

à chaque étape, nous vous
accompagnons vers la
réussite de votre projet

Parce que votre avis compte !

Alpha Constructions

ÉlodieR

Parfait !

Demande toujours respectée et comprise toujours disponible et a l'écoute du client.

4,8 / 5

1327 avis

+