Constructeur de Maisons

Alpha Constructions

Votre terrain + maison

Retour à la liste

Saint-Aubin-de-Médoc

Terrain de 1050 m2 Maison de 165 m2

750 000 €

Notre conseiller à votre écoute

Thibaud GANDERATZ

au 06.72.58.62.29

Terrain proposé par un partenaire foncier selon disponibilité dans le cadre d’un projet de construction avec Alpha Constructions. Les descriptions, photographies, surfaces et prix illustrant l’annonce sont fournies à titre indicatif et ne sont pas contractuels. Non soumis au DPE. Différents modèles disponibles.

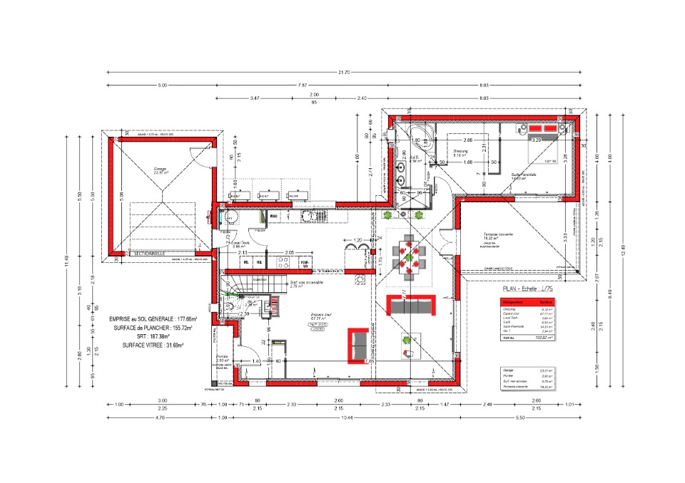
Projet Terrain + Maison – Saint-Aubin-de-Médoc – En impasse – 165 m² habitables

Découvrez un projet rare sur la commune très recherchée de Saint-Aubin-de-Médoc, situé au calme absolu au fond d’une impasse, sur une superbe parcelle d’environ 1 050 m² exposée plein sud.

Nous vous proposons ici un projet terrain + maison d’architecte, entièrement personnalisable selon vos envies et votre mode de vie.

La maison proposée en exemple développe environ 165 m² habitables, avec un étage partiel et un garage attenant.
Elle se compose notamment de :

Une grande pièce de vie lumineuse ouverte sur le jardin

Une suite parentale

Trois autres chambres

Deux salles de bains

Un cellier / buanderie

Un garage fermé

Les volumes sont pensés pour offrir une circulation fluide, beaucoup de lumière, et un confort moderne.

Le terrain, non viabilisé, permet d’imaginer un beau jardin paysager, une terrasse généreuse, ainsi qu’une piscine si vous le souhaitez.

Coût global du projet terrain + maison : 750 000 €
(hors frais d’acquisition, viabilisation et aménagements extérieurs)

Le projet est entièrement adaptable : plans, style architectural, agencement intérieur. Rien n’est figé.

Pour plus d’informations ou pour étudier un projet de construction sur-mesure :
Thibaud GANDERATZ – O6 72 58 62 29
Alpha Constructions – Agence Homexpo Bordeaux Lac

Alpha Constructions

Votre agence

HOMEXPO BORDEAUX PANAMA

Parc des Expositions Bordeaux Lac
33000 – BORDEAUX

Tél. : 05 56 80 78 19

contacter l'agence

Et si vous faisiez construire
à Saint-Aubin-de-Médoc

Votre maison

Découvrez nos modèles de maison adaptés à votre style et votre secteur...

Modèles de maison Alpha constructions

Alpha Constructions s'engage

Bénéficiez d’un savoir-faire, d’une expérience et de garanties.

Expérience Alpha Constructions

Expérience

+ de 20 ans
de savoir-faire
3800 maisons
réalisées

Garanties Alpha Constructions

Garanties

Parfait achèvement, décennale...
des garanties à chaque étape
de votre projet

Alpha Constructions à vos côtés

À vos côtés

à chaque étape, nous vous
accompagnons vers la
réussite de votre projet

Parce que votre avis compte !

Alpha Constructions

ÉlodieR

Parfait !

Demande toujours respectée et comprise toujours disponible et a l'écoute du client.

4,8 / 5

1327 avis

+