Constructeur de Maisons

Alpha Constructions

Votre terrain + maison

Retour à la liste

Pazayac

Terrain de 2005 m2 Maison de 120 m2

336 000 €

Notre conseiller à votre écoute

Marie MUNOZ

au 06 71 63 16 59

Terrain proposé par un partenaire foncier selon disponibilité dans le cadre d’un projet de construction avec Alpha Constructions. Les descriptions, photographies, surfaces et prix illustrant l’annonce sont fournies à titre indicatif et ne sont pas contractuels. Non soumis au DPE. Différents modèles disponibles.

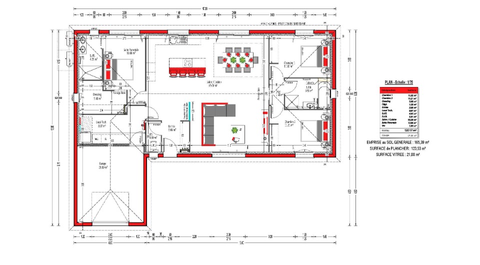
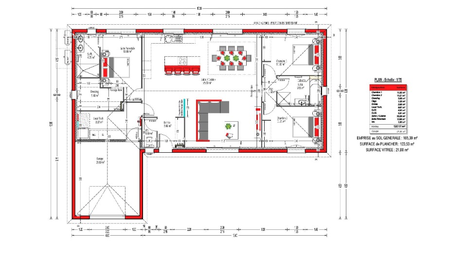
Maison neuve de 120m2 avec garage sur Pazayac

Dans le cadre d’un projet de construction, à quelques minutes de Terrasson ou de Brive, laissez vous charmer par cette maison de 4 pièces de plain-pied de 120 m², idéalement située.

Conçue de plain-pied, elle comporte trois chambres équipées, dont une suite parentale, d’une salle de bains avec douche, baignoire et vasque. Le séjour est très lumineux et offre beaucoup de confort avec sa cuisine ouverte sur un grand séjour.
Le garage offre un volume confortable avec son cellier attenant.

Le terrain de 2 005 m² est situé dans un quartier recherché puisqu’il est en retrait de la départementale, dans une impasse et les commerces sont à moins de 5 minutes en voitures.
Côté transports, on trouve des gares à moins de 10 minutes et les autoroutes A89 et A20 sont accessibles à moins de 9 km.

Elle est à vendre pour la somme de 336 000 €.

N’hésitez pas à prendre contact avec Marie MUNOZ (06-71-63-16-59) pour toute information sur la propriété. Alpha Constructions Brive-la-Gaillarde est là pour vous accompagner à toutes les étapes de votre projet.

Alpha Constructions

Votre agence

BRIVE

10 Rue Armand Sourie
19100 Brive

Tél. : 05 55 23 02 47

contacter l'agence

Et si vous faisiez construire
à Pazayac

Votre maison

Découvrez nos modèles de maison adaptés à votre style et votre secteur...

Modèles de maison Alpha constructions

Alpha Constructions s'engage

Bénéficiez d’un savoir-faire, d’une expérience et de garanties.

Expérience Alpha Constructions

Expérience

+ de 20 ans
de savoir-faire
3800 maisons
réalisées

Garanties Alpha Constructions

Garanties

Parfait achèvement, décennale...
des garanties à chaque étape
de votre projet

Alpha Constructions à vos côtés

À vos côtés

à chaque étape, nous vous
accompagnons vers la
réussite de votre projet

Parce que votre avis compte !

Alpha Constructions

ÉlodieR

Parfait !

Demande toujours respectée et comprise toujours disponible et a l'écoute du client.

4,8 / 5

1327 avis

+