Constructeur de Maisons

Alpha Constructions

Votre terrain + maison

Retour à la liste

Le Pian-sur-Garonne

Terrain de 841 m2 Maison de 150 m2

434 500 €

Notre conseiller à votre écoute

Sophia BARRERE

au 05 57 98 50 94

Terrain proposé par un partenaire foncier selon disponibilité dans le cadre d’un projet de construction avec Alpha Constructions. Les descriptions, photographies, surfaces et prix illustrant l’annonce sont fournies à titre indicatif et ne sont pas contractuels. Non soumis au DPE. Différents modèles disponibles.

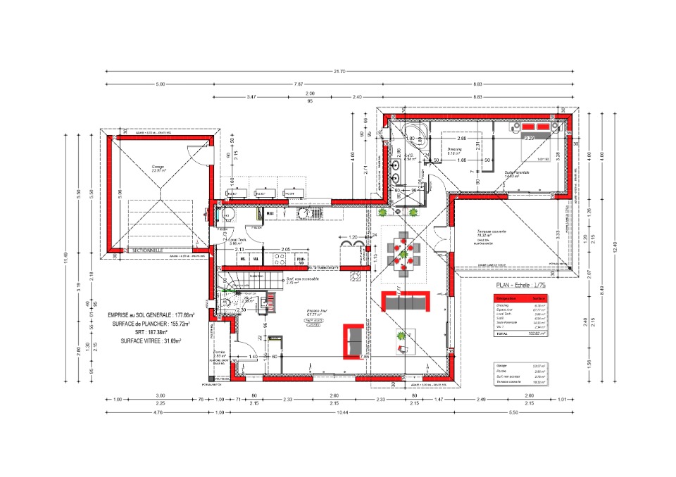
LE PIAN-SUR-GARONNE – PROJET DE CONSTRUCTION D’UNE MAISON T5

Idéalement située dans un quartier résidentiel du Pian-sur-Garonne, nous vous proposons ce projet de construction d’une maison contemporaine de 155 m² habitables, sur un terrain de 841 m².

Caractéristiques du projet :

-Pièce de vie traversante de plus de 68 m² avec de larges ouvertures donnant sur une terrasse couverte de 18 m²
-Cuisine ouverte avec cellier et accès direct au garage de 23 m².
-Suite parentale au rez-de-chaussée avec dressing et salle de bains privative.
À l’étage, trois chambres, une salle d’eau et un WC indépendant.
-Deux salles de bains, trois WC au total.
-Porche d’entrée et espace technique intégré.

Environnement :

-Cadre calme et recherché, idéal pour une vie de famille.
-École primaire accessible dans la commune.
-Transports : sept gares à moins de 10 minutes en voiture, accès rapide à l’A62 (7 km).
-Proximité commerces et équipements de loisirs (boulangerie, tennis).

Ce montant de 434 500 € inclus le terrain, frais de notaire, VRD, viabilisation.

Pour tout renseignement sur le projet, les démarches, contactez :
Sophia BARRERE
Alpha Constructions Langon

Alpha Constructions

Votre agence

LANGON

84 Cours des Fossés
33210 LANGON

Tél. : 05 57 98 50 94

contacter l'agence

Et si vous faisiez construire
à Le Pian-sur-Garonne

Votre maison

Découvrez nos modèles de maison adaptés à votre style et votre secteur...

Modèles de maison Alpha constructions

Alpha Constructions s'engage

Bénéficiez d’un savoir-faire, d’une expérience et de garanties.

Expérience Alpha Constructions

Expérience

+ de 20 ans
de savoir-faire
3800 maisons
réalisées

Garanties Alpha Constructions

Garanties

Parfait achèvement, décennale...
des garanties à chaque étape
de votre projet

Alpha Constructions à vos côtés

À vos côtés

à chaque étape, nous vous
accompagnons vers la
réussite de votre projet

Parce que votre avis compte !

Alpha Constructions

ÉlodieR

Parfait !

Demande toujours respectée et comprise toujours disponible et a l'écoute du client.

4,8 / 5

1327 avis

+