Constructeur de Maisons

Alpha Constructions

Votre terrain + maison

Retour à la liste

Cérons

Terrain de 262 m2 Maison de 75 m2

208 383 €

Notre conseiller à votre écoute

Sophia BARRERE

au 06 14 42 83 67

Terrain proposé par un partenaire foncier selon disponibilité dans le cadre d’un projet de construction avec Alpha Constructions. Les descriptions, photographies, surfaces et prix illustrant l’annonce sont fournies à titre indicatif et ne sont pas contractuels. Non soumis au DPE. Différents modèles disponibles.

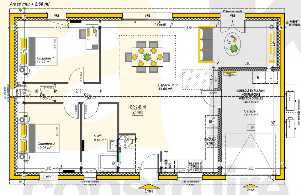
Votre projet ce construction au coeur de Cérons 33720 sur une parcelle de 262 m², idéalement située à proximité de la gare, des commerces et de l’autoroute A62.

La maison, d’une surface habitable de 75,68 m², comprend :

-Une pièce de vie lumineuse 45m² ouverte sur le jardin
-Deux chambres confortables
-Une salle de bain moderne avec WC indépendant
-Un garage de 14,16 m², transformable en pièce habitable si souhaité (chambre supplémentaire, bureau, suite parentale, etc.)

Maison livrée prête à décorer, idéale pour les primo-accédants ou les investisseurs.

Le prix comprend : Le terrain, La construction, Les frais de notaire, Les VRD.

Pour une étude personnalisés contactez Sophia BARRERE – Alpha Constructions Langon

Alpha Constructions

Votre agence

LANGON

84 Cours des Fossés
33210 LANGON

Tél. : 05 57 98 50 94

contacter l'agence

Et si vous faisiez construire
à Cérons

Votre maison

Découvrez nos modèles de maison adaptés à votre style et votre secteur...

Modèles de maison Alpha constructions

Alpha Constructions s'engage

Bénéficiez d’un savoir-faire, d’une expérience et de garanties.

Expérience Alpha Constructions

Expérience

+ de 20 ans
de savoir-faire
3800 maisons
réalisées

Garanties Alpha Constructions

Garanties

Parfait achèvement, décennale...
des garanties à chaque étape
de votre projet

Alpha Constructions à vos côtés

À vos côtés

à chaque étape, nous vous
accompagnons vers la
réussite de votre projet

Parce que votre avis compte !

Alpha Constructions

ÉlodieR

Parfait !

Demande toujours respectée et comprise toujours disponible et a l'écoute du client.

4,8 / 5

1327 avis

+