Constructeur de Maisons

Alpha Constructions

Votre terrain + maison

Retour à la liste

Beychac-et-Caillau

Terrain de 450 m2 Maison de 115 m2

409 000 €

Notre conseiller à votre écoute

Christophe VINCENT

au 06 71 17 33 22

Terrain proposé par un partenaire foncier selon disponibilité dans le cadre d’un projet de construction avec Alpha Constructions. Les descriptions, photographies, surfaces et prix illustrant l’annonce sont fournies à titre indicatif et ne sont pas contractuels. Non soumis au DPE. Différents modèles disponibles.

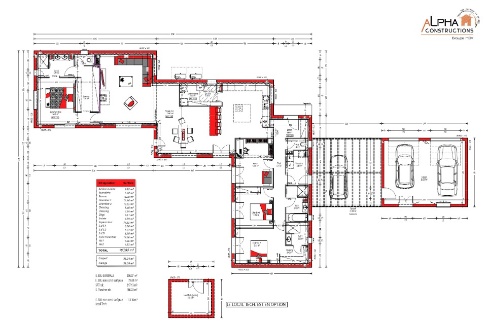
BEYCHAC ET CAILLAU, MAISON DE PLAIN-PIED 115 m², 4 CHAMBRES ET GARAGE

A BEYCHAC ET CAILLAU sur un terrain de 450 m², ALPHA CONSTRUCTIONS vous propose de réaliser votre futur projet de construction d’une surface de 115 m² habitables avec 4 chambres et 1 garage. Dans la partie « jour » d’environ 55 m² vous disposerez d’une d’entrée avec placard, d’une cuisine ouverte, d’un salon / séjour avec deux grandes baies vitrées, ainsi que d’un cellier communiquant avec la cuisine et le garage. La partie « nuit » se compose de 4 belles chambres avec placard ou dressing et d’une salle de bain avec douche italienne et meuble double vasques. WC indépendant. Projet modifiable, adaptable à vos envies et besoins.

Contactez votre conseiller, Mr VINCENT, au O6.71.17.33.22 pour plus de renseignements.

(Inclus terrain, frais de notaire, viabilisation, maison prête à décorer)

Alpha Constructions

Votre agence

BEYCHAC-ET-CAILLAU (Siège)

15 Route de Canteloup
33750 – BEYCHAC-ET-CAILLAU

Tél. : 05 56 06 31 92

contacter l'agence

Et si vous faisiez construire
à Beychac-et-Caillau

Votre maison

Découvrez nos modèles de maison adaptés à votre style et votre secteur...

Modèles de maison Alpha constructions

Alpha Constructions s'engage

Bénéficiez d’un savoir-faire, d’une expérience et de garanties.

Expérience Alpha Constructions

Expérience

+ de 20 ans
de savoir-faire
3800 maisons
réalisées

Garanties Alpha Constructions

Garanties

Parfait achèvement, décennale...
des garanties à chaque étape
de votre projet

Alpha Constructions à vos côtés

À vos côtés

à chaque étape, nous vous
accompagnons vers la
réussite de votre projet

Parce que votre avis compte !

Alpha Constructions

ÉlodieR

Parfait !

Demande toujours respectée et comprise toujours disponible et a l'écoute du client.

4,8 / 5

1367 avis

+